广州梓净所提供的冷轧钢板烤漆风淋室又称为风淋通道或者自动门风淋室,质量可靠、规格尺寸齐全,广州梓净不仅具有精湛的技术,更有良好的售后服务和优质的解决方案,欢迎您来电咨询此冷轧钢板烤漆风淋室产品具体参数及价格等详细信息。
冷轧钢板烤漆风淋室是人或物料进出洁净区必需的通道,起到气阀室密闭洁净室的作用。风淋室可以减低进出洁净区所带来的污染问题,经过高效过滤器初效过滤器喷出高速洁净气流,有效而迅速的清除人身服饰或物料从非洁净区所带来的尘埃粒子及细菌。
钢板烤漆风淋室杜绝工作人员将头发,灰尘、细菌带入洁净车间,达到工作场地严格的无尘净化标准,生产出高质量的产品。
烤漆风淋室广泛应用于电子、精密仪器、仪表、汽车制造、制药、食品、化工、农业、生物等各个工业部门和种类科学实验室。
为什么要购买冷轧钢板烤漆风淋室的4点理由:
9299cc百瑞彩票1、相比全不锈钢风淋室价格便宜;
2、相比彩钢板风淋室耐用;
3、烤漆颜色接近彩钢板装修材料颜色,统一、美观、大方;
4、冷轧钢板烤漆风淋室性价比高,不掉漆。推荐:不锈钢风淋室
冷轧钢板烤漆风淋室配置:
9299cc百瑞彩票1、采用更适合洁净室原理与要求;
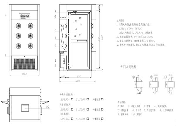
2、“梓净”牌有隔板高效过滤器,过滤效率为99.99%@0.3um,确保净化级别;
3、箱体材质采用冷轧钢板喷塑(板材公差按标准);采用顶加侧双吹 ,确保吹淋效果;
4、电路控制:集成电路板, LED显示吹淋时间,时间继电器0~99秒可调,韩国AUTONISE红外感应器,感应自动吹淋,触摸式微动开关,正泰中间继电器,;
9299cc百瑞彩票5、外箱体设电源指示灯及风淋室工作指示灯,减噪静音装置系统和智能语音提示系统,在吹淋的时候使人倍感亲切舒适;
6、自动闭门器;电子互锁,风淋时各门自动锁闭,吹淋后入门锁闭,只能从出门走出风淋室;
7、采用阿基米德螺线型设计的送风吹淋系统达到≥25m/s的超强风速,确保进入洁净室的人员及货物达到彻底除尘的完美效果;
9299cc百瑞彩票8、配壹台风淋室专用风机,电源:380V/50HZ,功率:1.1KW*2
9299cc百瑞彩票9、采用独特的空气清新功能系统,对长期封闭的风淋室&风淋通道内产生的异味进行切底的消除;配嵌入式20W嵌入式日光灯(含灯管和灯盘),保证足够的照明亮度。
顺便了解一下冷轧钢板烤漆风淋室配置箱体及门的烤漆工艺流程:碱洗-水洗—酸洗—水洗—磷化—钝化—烘干—底漆—烘干-打磨—面漆-烘干。通过以上流程才能保证烤漆后的风淋室箱体及门美观大方,不掉漆,不易生锈,满足用户的需求,风淋室价格性价比较高。
梓净建议:冷轧钢板烤漆风淋室选配:
9299cc百瑞彩票1、风淋室外箱体烤漆,内胆及门采用不锈钢更加美观;
9299cc百瑞彩票2、风淋室整体采用烤漆;
3、风淋室外箱体及内胆烤漆,门采用不锈钢更加美观。除以上三种箱体配置没有其它更合适的。
9299cc百瑞彩票冷板风淋室通道外部采用1.2厚冷板喷塑而成。长度根据客户要求定做,分为电子互锁,光电感应,全自动控制系统。地板采用不锈钢制作而成。
广州梓净净化厂家有不同材质的风淋室不同行业应用风淋室。
9299cc百瑞彩票风淋室的材料选择是决定风淋室价格的因素之一,全自动风淋室的材料选择可分如下:全冷板风淋室、全不锈钢风淋室、外冷板内不锈钢风淋室。
烤漆风淋室规格尺寸:
广州梓净所提供的空气净化产品及设备有风淋室,货淋室,初效过滤器,中效过滤器,高效过滤器9299cc百瑞彩票、超净工作台,洁净工作台,传递窗,风淋室配件,风淋室控制器,化学过滤器,FFU风机过滤单元,空气自净器,洁净棚,新风柜,过滤柜,通风柜,洗手池,洁净采样车,高风效送口等等洁净室及配套用净化产品等。无尘车间净化设备广泛应用于电子、半导体、生物制药、食品加工、核工业、汽车制造业,空调暖通业行业和领域等。
梓净从净化设备与净化工程,无尘车间承建商,无尘车间工程,无尘车间建设,无尘车间洁净度测试,无尘车间解决方案,百级无尘车间,千级无尘车间,万级无尘车间,无尘车间标准,无尘车间施工,无尘车间设备,无尘车间设计、无尘车间施工、无尘车间维护,无尘车间亦称净化车间或无尘室洁净室。
梓净”牌空气净化设备产品质量保证:
1、我司出产的”梓净”牌空气净化设备及空气过滤器产品已获国内;
2、为满足客户对洁净室的高品质要求,我司生产出厂的每一台空气净化设备都经过我司质检员的严格检查,符合产品质量标准方可出厂;空气过滤器都在标准万级无尘车间内生产、检测。
3、产品交付验收完毕后,我司将对贵司及所订购产品建立独立的档案,以便与我司长期的为贵司提供优质、及时的服务。

